Otthon a természet ölelésében

940 Nyomtatás Ajánlás Facebook

OTTHONRA LELHET A TERMÉSZET ÖLELÉSÉBEN!!
Legyen Ön is tagja Pomázon a kertváros lakóközösségének!

Kivételes lehetőség a pihenés és kikapcsolódás szerelmeseinek!
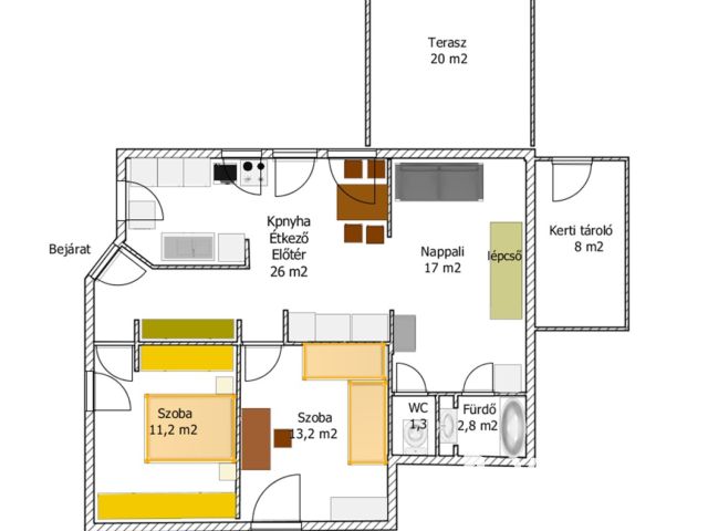
Eladó egy felújított (egy pár apró dolog kivételével kész), hőszigetelt , könnyűszerkezetes ház Pomáz egyik legcsendesebb utcájában. A 110 m2-es beépített térből a földszinten 2 szoba, egy tágas nappali ,konyha-étkező , külön WC és fürdőszoba, fedett terasz és tároló található. Az emeleti szinten egy 8 m2 szoba (2,2 m magas) valamint 30 m2 (190 cm alatti) galéria van amely ideális gyerekjátszóhelynek vagy tárolásra. Az alacsony fenntartási költségeknek köszönhetően ideális választás mind hétvégi feltöltődésre, mind állandó tartózkodásra.

A házban klíma gondoskodik a téli-nyári fűtésről-hűsítésről, télen pedig a meghitt hangulatot még egy fatüzelésű vaskandalló is biztosítja. A 15 cm-es hőszigetelés révén az energiahatékonyság garantált. Az ingatlan különlegessége még a háromfázisú áramellátás , éjszakai áramú meleg víz készítés, bio szikkasztó- emésztőrendszer,infra fűtőpanelek a padlóban és a praktikus gardróbok, amely extra tároló helyet kínálnak.

A 799 m²-es telken egy 30 m2 es , szintén hőszigetelt melléképület is helyet kapott, amely további lehetőségeket rejt magában. A 20 m2-es teraszról, amely közvetlen kertkapcsolattal bír, élvezheti a természet közelségét,a vezetékes víz mellett az ásott kút a kertészkedéshez nagy segítség, miközben az udvari gépjárműbeálló megoldja a parkolást.

Ez a ház a természet és a modern kényelem tökéletes harmóniája. Ne hagyja ki, nézze meg személyesen, és győződjön meg róla, hogy ez az ingatlan az, amit keresett!
A terület "Zártkerti művelés alól kivett" besorolású ezért a 3 % kedvezményes hitel nem vehető fel rá, de irodánk szabad felhasználású és egyéb hitelek igénylését díjmentesen intézi.

Irányár:73.990.000,-Ft
Érdeklődni lehet: Borsi Péter /+36 30 916 2201

Borsi Péter

Borsi Péter

Ingatlanértékesítő
Piliscsaba
+36 (30) 916 2201
Észrevétel a hirdetéssel kapcsolatban
Egy ingatlanos naplója