Felújítandó 4 szobás családi ház Sarkadon

11282 Nyomtatás Ajánlás Facebook

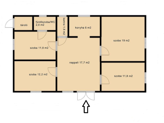
Városi Ingatlaniroda eladásra kínál Békés vármegyében, Sarkad városában, egy 85 m2-es tégla falazatú családi házat.
Az ingatlan minden közművel ellátott, de az órák le vannak szerelve, vissza kell köttetni.
Telekmérete 646 m2, mely rendezett és teljesen körbekerített. Gépjárművel be lehet parkolni az udvarba.

A ház teljes felújítást igényel.

A ház részei:
- 4 szoba
- ebédlő/nappali
- főzőfülke
- fürdőszoba

A ház a Szalontai útról nyílik. Csendes mellék utca. A Tesco pár perc sétára található.

Molnár János
PRÉMIUM

Molnár János

2 éve a Városi Ingatlaniroda tagja
Ingatlanértékesítő
Békéscsaba
+36 (70) 384 6653
Észrevétel a hirdetéssel kapcsolatban
Egy ingatlanos naplója