Eladó modern 4 szobás ikerfél nagy teraszokkal

5942 Nyomtatás Ajánlás Facebook

Prémium ikerház eladó Budapest XVIII. kerület Ganzkertváros zöldövezeti részén

Csend, zöld környezet és modern kényelem – ezt kínálja ez a 134 m²-es, kétszintes, új építésű ikerház, melyhez 373 m²-es saját telekrész, 26 m²-es földszinti terasz és 18,64 m²-es emeleti tetőterasz tartozik.

A két lakás csak a földszinten, a garázsnál kapcsolódik, a dupla főfal és légrés biztosítja a teljes akusztikus és fizikai leválasztást, így zavartalan, önálló élettér alakítható ki.

Az ingatlan kulcsrakész állapotban kerül átadásra, prémium minőségű anyaghasználattal és alacsony fenntartási költségekkel.


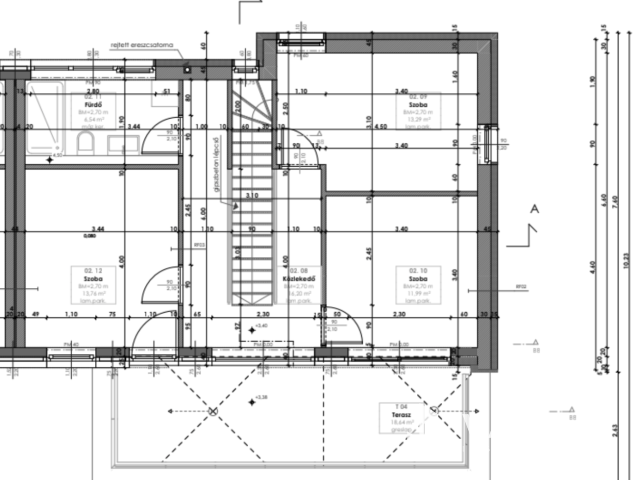
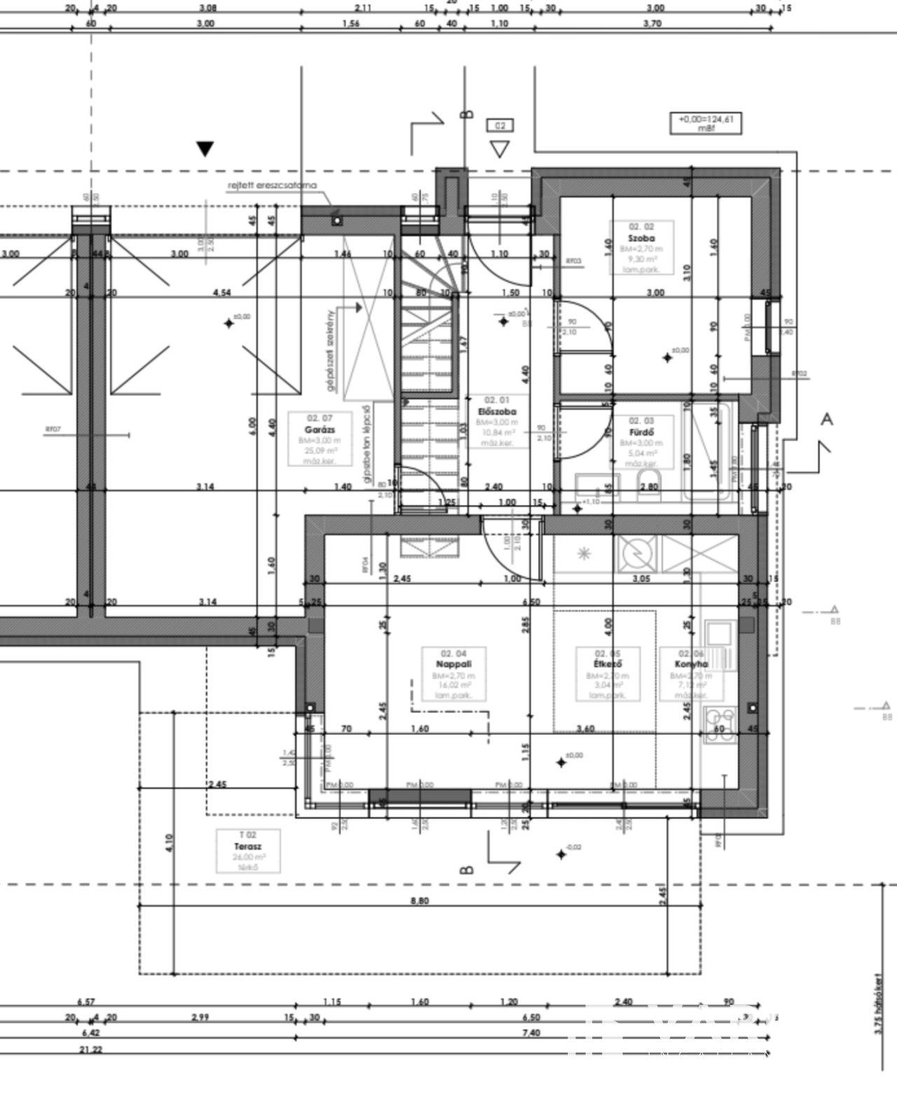
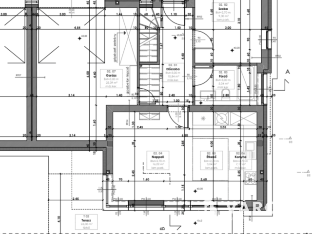
Elosztás és térélmény:
• Nappali amerikai konyhával, közvetlen kertkapcsolattal
• 4 tágas hálószoba, világos, praktikus elrendezés
• 2 fürdőszoba, modern szaniterekkel
• 26 m²-es terasz a földszinten, parkosított udvarral
• Tetőterasz az emeleten, kilátással a zöldövezetre

Felszereltség és extrák:
• Hőszivattyús fűtés + padlófűtés minden helyiségben
• Hő- és hangszigetelt nyílászárók
• 10 cm homlokzati + 30 cm mennyezeti hőszigetelés
• Alapriasztó rendszer nyitásérzékelőkkel
• Előkészítés: napelem, kamera, levegő szellőztető rendszer, okosotthon vezérlés
• Elektromos alumínium redőnyök, szúnyoghálóval
• Garázs elektromos kapuval, tárolóval, elektromos autó töltő előkészítéssel
• Okostelefonról irányítható hűtés, fűtés, redőnyök
• Füvesített kert, modern 3D kerítéssel
• Optikai internettel előkészítve


Lokáció és megközelíthetőség:
• Zöldövezeti, nyugodt környék kiváló infrastruktúrával
• Közeli óvodák, iskolák, üzletek, uszoda, buszmegálló
• M0 és M5 autópályák néhány perc alatt elérhetők


Ez az otthon ideális választás mindazok számára, akik exkluzív, mégis megfizethető új építésű ingatlant keresnek csendes, de jól megközelíthető budapesti környezetben.
Várható átadás 2026. III. negyedév.
Az ingatlanra a közművek bekötésre kerültek.

A részletes műszaki tartalmat szívesen küldöm e-mailben.
Keressen bizalommal, ne maradjon le erről a kivételes lehetőségről!

Meszesánné Márki Ildikó
PRÉMIUM

Meszesánné Márki Ildikó

12 éve a Városi Ingatlaniroda tagja
Ingatlanértékesítő
Gyál
+36 (20) 388 3540
Észrevétel a hirdetéssel kapcsolatban
Egy ingatlanos naplója